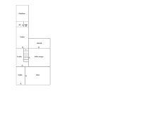
EQUEURDREVILLE CENTRE, Belle propriété en pierre sur 2700 m² de terrain
Propriete 247 m² - 11 Pièces - Cherbourg-En-Cotentin
Coup de cœur assuré : Propriété d'exception à Équeurdreville Cette superbe demeure en pierre, nichée sur un terrain arboré de 2700 m², vous offre un cadre de vie idyllique. D'une surface habitable...
