Description de l'offre
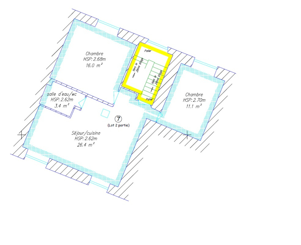
Dans une petite copropriété , au 3ème étage, un appartement de type F3 orienté plein SUD avec une jolie vue dégagée. Rue calme. Appartement très lumineux. Les informations sur lesquels ce bien est exposé, sont disponibles sur le site www.georisques.gouv.fr Estimation des coûts annuels : entre 1340 EUR et 1850 EUR par an Prix moyens des énergies indexés sur les années 2021,2022 et 2023.(abonnement compris). Nombre de lots dans la copropriété: 7 Pas de procédure en cours.
